Технический паспорт квартиры - это официальный документ, содержащий технические характеристики жилого помещения. Рассмотрим его назначение, содержание и порядок получения.

Содержание

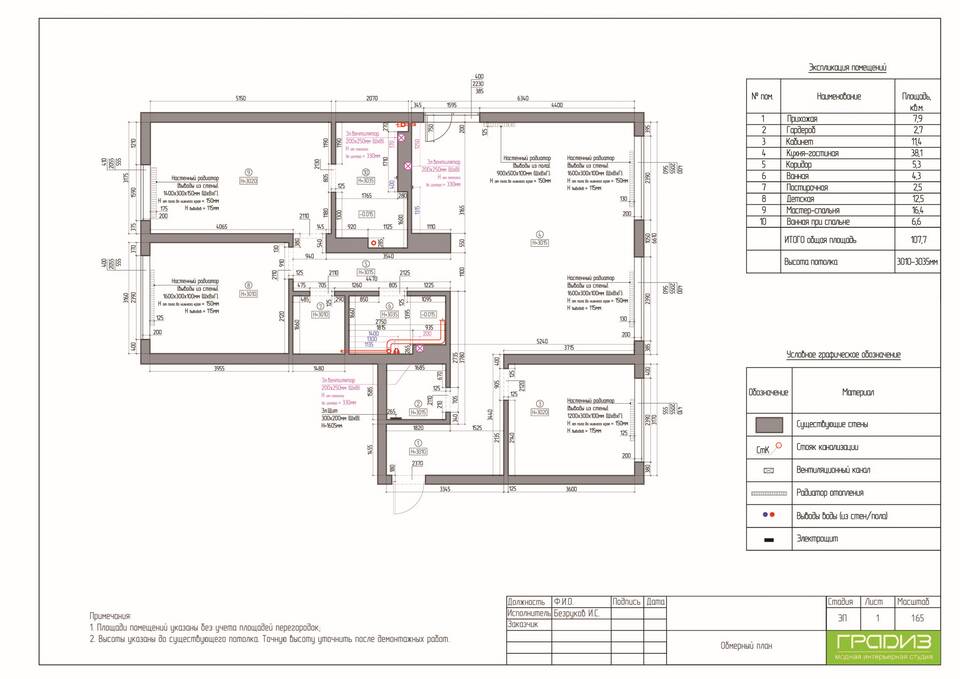
Что такое технический паспорт

Технический паспорт представляет собой документ, который содержит:

  • План квартиры с указанием размеров
  • Информацию о материалах стен и перекрытий
  • Данные об инженерных коммуникациях
  • Поэтажный план здания
  • Кадастровый номер помещения

Для чего нужен технический паспорт

СитуацияНазначение
Сделки с недвижимостьюПодтверждение технических характеристик
ПерепланировкаОбязательный документ для согласования
ПриватизацияВходит в пакет необходимых документов
Суды и спорыИспользуется как доказательство

Чем отличается от кадастрового паспорта

  • Технический паспорт содержит детальные технические характеристики
  • Кадастровый паспорт включает только основные сведения для кадастрового учета
  • Техпаспорт оформляется БТИ, кадастровый - Росреестром
  • Техпаспорт имеет неограниченный срок действия, но требует обновления после перепланировок

Как получить технический паспорт

  1. Обратиться в БТИ или МФЦ с заявлением
  2. Предоставить документы:
    • Паспорт собственника
    • Правоустанавливающие документы
    • Доверенность (если действует представитель)
  3. Оплатить госпошлину
  4. Дождаться проведения технической инвентаризации
  5. Получить готовый документ

Сроки и стоимость:

  • Срок изготовления: от 5 до 14 рабочих дней
  • Стоимость: от 1 000 до 3 000 рублей в зависимости от региона
  • Срочное изготовление возможно за дополнительную плату

Когда требуется обновление техпаспорта

  • После проведения перепланировки квартиры
  • При изменении технических характеристик помещения
  • При утере или порче документа
  • Если в документе обнаружены ошибки
  • По требованию государственных органов

Технический паспорт квартиры является важным документом, который может потребоваться в различных ситуациях, связанных с недвижимостью. Рекомендуется хранить его вместе с другими документами на квартиру и своевременно обновлять при изменении характеристик жилья.

Другие статьи

Как выглядит паспорт внутри и прочее